Haus der gesunden ernährung
Ein Ort des bewussten Speisens im Zentrum von Halberstadt
Die Idee
Das Thema gesunde Ernährung ist heutzutage mehr als nur ein Trend. Mit den Aspekten der Nachhaltigkeit fängt die Gesellschaft an, umzudenken, zu hinterfragen und vor allem bewusster zu leben. Da die Ernährung einen sehr großen Anteil an unserem Wohlbefinden hat, beschäftigt sich die Bevölkerung wieder mehr mit dem, was sie isst und wo es herkommt.
Fragen wie: „Wo kommt mein Essen her?“ und „Was sind die Inhaltsstoffe meiner Nahrung?“ sind gerade in Großstädten mehr als nur ein Trend. Jedoch ist es auch wichtig, diese Informationen und Grundlagen in Kleinstädten zu verbreiten und darauf aufmerksam zu machen.
So entstand der Wunsch, ein Zentrum für gesunde Ernährung in das Bestandsgebäude und in einen, die Baulücke schließenden, Anbau, auf dem Gelände des Grudenberg 7 in Halberstadt, zu bringen, der die Aspekte des nachhaltigen Bauens berücksichtigt und sich bautypisch an der Architektur des Bestands und der Umgebung orientiert.
Dort soll ein vielseitiges Angebot rund um das Thema entstehen, welches das Haus als zentralen Anlaufpunkt für jeden macht, der Speisen und Lebensmittel mit hoher Qualität aus lokalem Anbau kaufen und verköstigen möchte, oder lernen möchte, wie man selbst gesund kocht.

















Das Bestandsgebäude Grudenberg 7 in Halberstadt



Entwurfsaxonometrie gesamt, Erdgeschoss und Obergeschoss
Das Architekturkonzept
Aus dem über 300 Jahre alten Fachwerkhaus wird das Haus der gesunden Ernährung, welches auch die Baulücke des ehemaligen Seitenflügels füllt. Dort entsteht ein Neubau, der in Höhe und Form die davon übrig gebliebenen Fachwerkgebinde aufnimmt. Diese werden bis auf die Außenwände entkernt und mit neu eingestellten Wänden statisch und thermisch aufgewertet.
Eine Schattenfuge, die behutsam die Konturen des Bestands aufgreift, bildet den Übergang zur neuen Fassade. Diese besteht aus geköhlten Hölzern, welche reliefartig im Bestandsraster angebracht sind und das Fachwerk modern interpretieren. Die schwarze Fassade trägt außerdem dazu bei, dass sich der Neubau in der Wichtung gegenüber dem Vorderhaus zurück nimmt.
Das Gebäude ist im Sinne des zirkulären Bauens konzipiert. So ist es unter anderem auf Schraubfundamenten gegründet, mit nachwachsenden oder recycelten Materialien wie Zellulose oder Schaumglas gedämmt und konstruktiv komplett in Holzbauweise errichtet. Großflächige Glasflächen auf dem Dach lassen den Innenraum durch Sonnenlicht erwärmen, Photovoltaikelemente nutzen dieses zur Warmwasser- und Stromerzeugung, womit unter anderem eine Wärmepumpe betrieben wird. So versorgt sich der Gebäudekomplex fast autark und außschließlich mit erneuerbarer Energie. Um dabei die Effizienz hoch zu halten, werden alle Außenwände des Bestandsgebäudes um eine innen liegende Dämmschicht ergänzt.



Fotovisualisierungen




Das Innenarchitekturkonzept
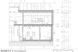
Erdgeschoss
Durch das historische Eingangsportal, welches um einen Windfang ergänzt wird, erreicht man den großflächigen Korridor im Bestandsbau. An diesen schließt sich linkerhand die transparent produzierende Bäckerei mit Essbereich, sowie rechterhand der Verkauf lokaler Lebensmittel an. Hier werden vor Ort gewachsene Erzeugnisse verkauft, aber auch Hobbygärtner haben die Möglichkeit, ihre Übermengen ankaufen zu lassen.
Von der Bäckerei aus gelangt man über Rampen in den flacher gelegenen Anbau, der zum luftoffenen Atrium über beide Etagen wird und Alt- mit Neubau verbindet. Dort befindet sich das Restaurant samt offener Küche, sowie ein weiterer Eingang mit Korridor, der in seinen Dimensionen dem des Bestands ähnelt und durch eine auffällige Wendeltreppe ebenso Erd- und Obergeschoss verbindet. Richtung Nachbargebäude befinden sich mit einem barrierefreien WC, einem Lager mit Kühlraum, dem Hausanschlussraum sowie einer Umkleide für Mitarbeitende eher weniger öffentliche, aber zweckorientierte Räume.





Visualisierungen Erdgeschoss















Visualisierungen Obergeschoss
Obergeschoss
Im Obergeschoss liegt der Fokus auf dem Thema Kochen. Während sich am Austritt der Bestandstreppe ein Büro für Ernährungsberatung befindet, ist über dem Korridor ein zentraler Speiseraum mit runder Tafel. Dieser ist über Boden- und Deckenöffnungen optisch mit den beiden angrenzenden Geschossen verbunden. Das in nördliche Richtung angrenzende Kochstudio ist für kleinere Gruppen ausgelegt, während das rund gebaute Mobiliar den Fokus auf das Zentrum des Schaffens, die Kücheninsel, legt. Südlich des Speiseraums befindet sich die Kochschule, welche genug Platz für größere Gruppen und Schulklassen bietet. Höhenverstellbare und mobile Arbeitsplätze in der Form eines Kreissegments lassen den Raum je nach Bedarf variabel anpassen.
Unmittelbar damit verbunden ist das im Neubau befindliche Gewächshaus, welches sich fast über die gesamte Geschossfläche erstreckt und durch einen Deckendurchbruch optisch mit dem darunter liegenden Restaurant verbunden ist. Durch gleichbleibend warme Temperaturen können in den großflächigen Hochbeeten ganzjährig verschiedene Obst- und Gemüsesorten angebaut werden. Das Gewächshaus wird durch eine zugehörige Arbeitsküche mit Lager ergänzt. In diesem Bereich des Gebäudes befinden sich außerdem die sanitären Anlagen. Hier führt ebenfalls eine Treppe ins Dachgeschoss, welches einen Mitarbeiterraum beherbergt und einen einzigartigen Panoramablick über die Anbaufläche gewährt.











Das Modell
Das Modell, welches im Maßstab 1:50 gefertigt ist, zeigt die Elemente des Entwurfs im Detail, jedoch trotzdem abstrahiert.
Dabei ist der Bestand in 12mm Eiche Vollholz mit originalgetreu geritzter Fachwerkfassade gefertigt, während der Neubau in 8mm Eichenfurnierplatte versucht, die Wirkung der schwarzen Fassade realitätsnah wiederzugeben. Die Innenwände sind in 6mm Eichenfurnierplatte gefertigt und möbelartige Einbauten sind einheitlich weiß lackiert. Alle Geschosse samt Dach sowie Alt- und Neubau sind nur an- und aufeinander gesteckt, sodass man diese jederzeit spontan ohne zusätzliches Werkzeug auseinander nehmen kann. Das Modell wird durch eine graue MDF-Platte gerahmt, welche gleichzeitig die Geländehöhen abstrahiert und die unmittelbare Umgebung geritzt darstellt.

















Modellbilder
Projekt: Haus der gesunden Ernährung, Masterarbeit Interior Architecture, Burg Giebichenstein Hochschule für Kunst und Design
Einzelarbeit, Winter 2023/24


Zeitschrift Martini 02/2024
Publikationen
Haus der gesunden ernährung
Ein Ort des bewussten Speisens im Zentrum von Halberstadt
Die Idee
Das Thema gesunde Ernährung ist heutzutage mehr als nur ein Trend. Mit den Aspekten der Nachhaltigkeit fängt die Gesellschaft an, umzudenken, zu hinterfragen und vor allem bewusster zu leben. Da die Ernährung einen sehr großen Anteil an unserem Wohlbefinden hat, beschäftigt sich die Bevölkerung wieder mehr mit dem, was sie isst und wo es herkommt.
Fragen wie: „Wo kommt mein Essen her?“ und „Was sind die Inhaltsstoffe meiner Nahrung?“ sind gerade in Großstädten mehr als nur ein Trend. Jedoch ist es auch wichtig, diese Informationen und Grundlagen in Kleinstädten zu verbreiten und darauf aufmerksam zu machen.
So entstand der Wunsch, ein Zentrum für gesunde Ernährung in das Bestandsgebäude und in einen, die Baulücke schließenden, Anbau, auf dem Gelände des Grudenberg 7 in Halberstadt, zu bringen, der die Aspekte des nachhaltigen Bauens berücksichtigt und sich bautypisch an der Architektur des Bestands und der Umgebung orientiert.
Dort soll ein vielseitiges Angebot rund um das Thema entstehen, welches das Haus als zentralen Anlaufpunkt für jeden macht, der Speisen und Lebensmittel mit hoher Qualität aus lokalem Anbau kaufen und verköstigen möchte, oder lernen möchte, wie man selbst gesund kocht.

















Das Bestandsgebäude Grudenberg 7 in Halberstadt



Entwurfsaxonometrie gesamt, Erdgeschoss und Obergeschoss
Das Architekturkonzept
Aus dem über 300 Jahre alten Fachwerkhaus wird das Haus der gesunden Ernährung, welches auch die Baulücke des ehemaligen Seitenflügels füllt. Dort entsteht ein Neubau, der in Höhe und Form die davon übrig gebliebenen Fachwerkgebinde aufnimmt. Diese werden bis auf die Außenwände entkernt und mit neu eingestellten Wänden statisch und thermisch aufgewertet.
Eine Schattenfuge, die behutsam die Konturen des Bestands aufgreift, bildet den Übergang zur neuen Fassade. Diese besteht aus geköhlten Hölzern, welche reliefartig im Bestandsraster angebracht sind und das Fachwerk modern interpretieren. Die schwarze Fassade trägt außerdem dazu bei, dass sich der Neubau in der Wichtung gegenüber dem Vorderhaus zurück nimmt.
Das Gebäude ist im Sinne des zirkulären Bauens konzipiert. So ist es unter anderem auf Schraubfundamenten gegründet, mit nachwachsenden oder recycelten Materialien wie Zellulose oder Schaumglas gedämmt und konstruktiv komplett in Holzbauweise errichtet. Großflächige Glasflächen auf dem Dach lassen den Innenraum durch Sonnenlicht erwärmen, Photovoltaikelemente nutzen dieses zur Warmwasser- und Stromerzeugung, womit unter anderem eine Wärmepumpe betrieben wird. So versorgt sich der Gebäudekomplex fast autark und außschließlich mit erneuerbarer Energie. Um dabei die Effizienz hoch zu halten, werden alle Außenwände des Bestandsgebäudes um eine innen liegende Dämmschicht ergänzt.



Fotovisualisierungen




Das Innenarchitekturkonzept
Erdgeschoss
Durch das historische Eingangsportal, welches um einen Windfang ergänzt wird, erreicht man den großflächigen Korridor im Bestandsbau. An diesen schließt sich linkerhand die transparent produzierende Bäckerei mit Essbereich, sowie rechterhand der Verkauf lokaler Lebensmittel an. Hier werden vor Ort gewachsene Erzeugnisse verkauft, aber auch Hobbygärtner haben die Möglichkeit, ihre Übermengen ankaufen zu lassen.
Von der Bäckerei aus gelangt man über Rampen in den flacher gelegenen Anbau, der zum luftoffenen Atrium über beide Etagen wird und Alt- mit Neubau verbindet. Dort befindet sich das Restaurant samt offener Küche, sowie ein weiterer Eingang mit Korridor, der in seinen Dimensionen dem des Bestands ähnelt und durch eine auffällige Wendeltreppe ebenso Erd- und Obergeschoss verbindet. Richtung Nachbargebäude befinden sich mit einem barrierefreien WC, einem Lager mit Kühlraum, dem Hausanschlussraum sowie einer Umkleide für Mitarbeitende eher weniger öffentliche, aber zweckorientierte Räume.





Visualisierungen Erdgeschoss










Obergeschoss
Im Obergeschoss liegt der Fokus auf dem Thema Kochen. Während sich am Austritt der Bestandstreppe ein Büro für Ernährungsberatung befindet, ist über dem Korridor ein zentraler Speiseraum mit runder Tafel. Dieser ist über Boden- und Deckenöffnungen optisch mit den beiden angrenzenden Geschossen verbunden. Das in nördliche Richtung angrenzende Kochstudio ist für kleinere Gruppen ausgelegt, während das rund gebaute Mobiliar den Fokus auf das Zentrum des Schaffens, die Kücheninsel, legt. Südlich des Speiseraums befindet sich die Kochschule, welche genug Platz für größere Gruppen und Schulklassen bietet. Höhenverstellbare und mobile Arbeitsplätze in der Form eines Kreissegments lassen den Raum je nach Bedarf variabel anpassen.
Unmittelbar damit verbunden ist das im Neubau befindliche Gewächshaus, welches sich fast über die gesamte Geschossfläche erstreckt und durch einen Deckendurchbruch optisch mit dem darunter liegenden Restaurant verbunden ist. Durch gleichbleibend warme Temperaturen können in den großflächigen Hochbeeten ganzjährig verschiedene Obst- und Gemüsesorten angebaut werden. Das Gewächshaus wird durch eine zugehörige Arbeitsküche mit Lager ergänzt. In diesem Bereich des Gebäudes befinden sich außerdem die sanitären Anlagen. Hier führt ebenfalls eine Treppe ins Dachgeschoss, welches einen Mitarbeiterraum beherbergt und einen einzigartigen Panoramablick über die Anbaufläche gewährt.





Visualisierungen Obergeschoss











Das Modell
Das Modell, welches im Maßstab 1:50 gefertigt ist, zeigt die Elemente des Entwurfs im Detail, jedoch trotzdem abstrahiert.
Dabei ist der Bestand in 12mm Eiche Vollholz mit originalgetreu geritzter Fachwerkfassade gefertigt, während der Neubau in 8mm Eichenfurnierplatte versucht, die Wirkung der schwarzen Fassade realitätsnah wiederzugeben. Die Innenwände sind in 6mm Eichenfurnierplatte gefertigt und möbelartige Einbauten sind einheitlich weiß lackiert. Alle Geschosse samt Dach sowie Alt- und Neubau sind nur an- und aufeinander gesteckt, sodass man diese jederzeit spontan ohne zusätzliches Werkzeug auseinander nehmen kann. Das Modell wird durch eine graue MDF-Platte gerahmt, welche gleichzeitig die Geländehöhen abstrahiert und die unmittelbare Umgebung geritzt darstellt.

















Modellbilder
Projekt: Haus der gesunden Ernährung, Masterarbeit Interior Architecture, Burg Giebichenstein Hochschule für Kunst und Design
Einzelarbeit, Winter 2023/24
Publikationen


Zeitschrift Martini 02/2024